Foad Amin Office

Design runs on chocolate

Our studio has worked independently since 2012

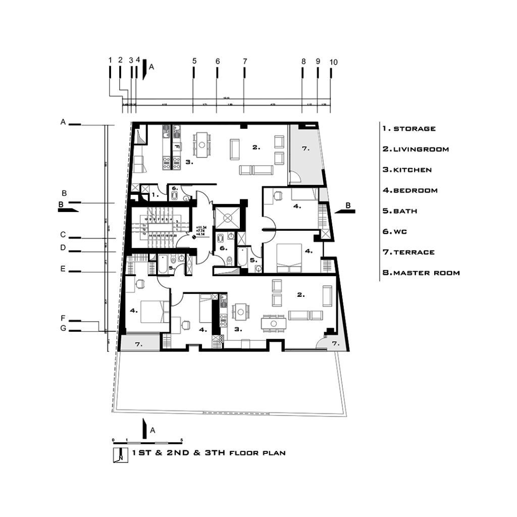
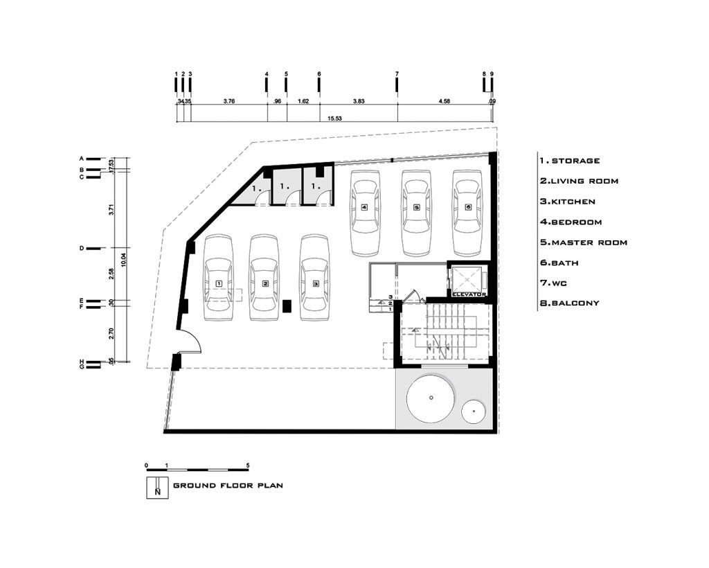
Rastgou

Residential
Previous
Next