Design runs on chocolate
Our studio has worked independently since 2012
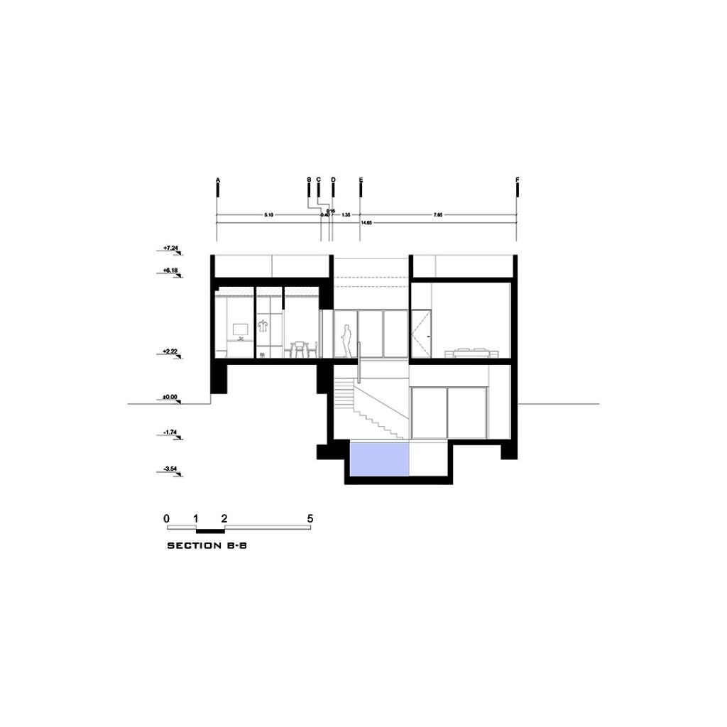
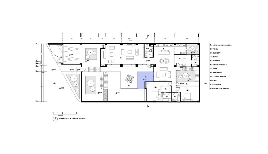
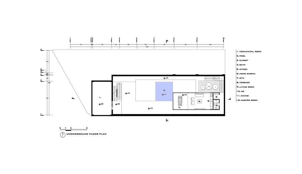
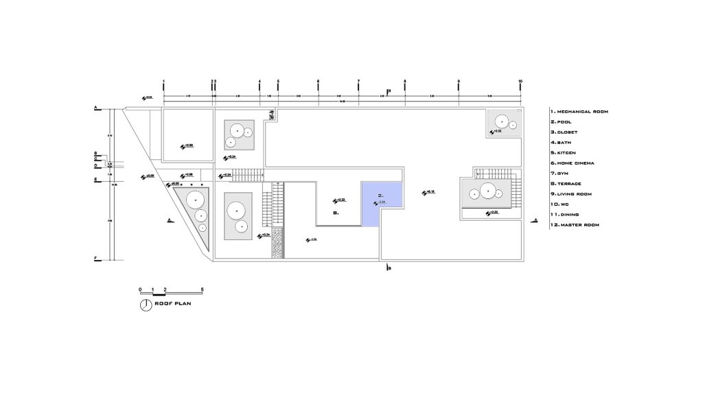
Aghaeian & Houshmand House
Residential
Previous
Next