Foad Amin Office

Design runs on chocolate

Our studio has worked independently since 2012

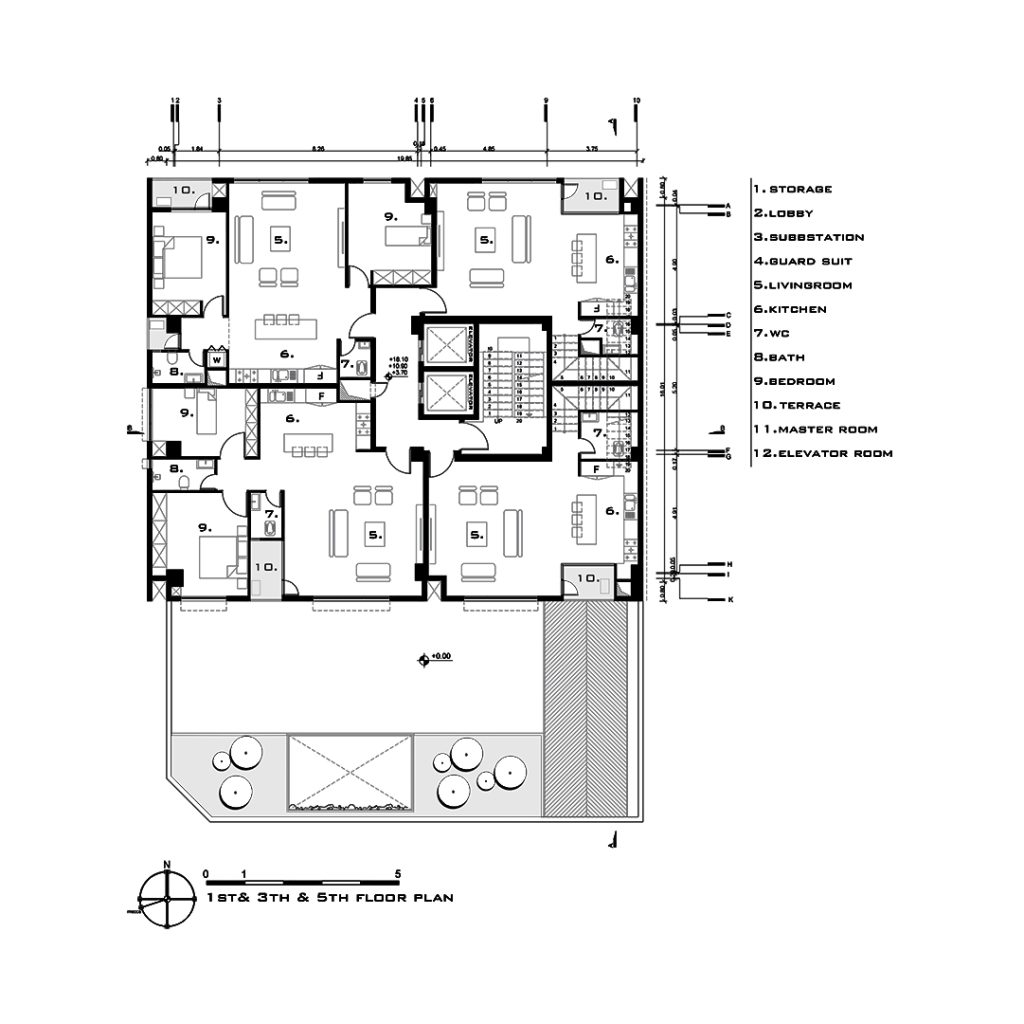
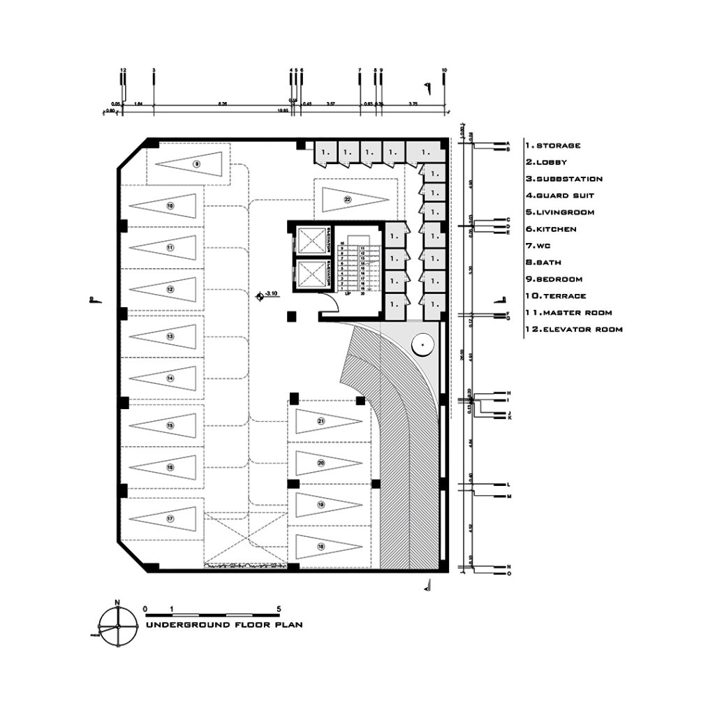
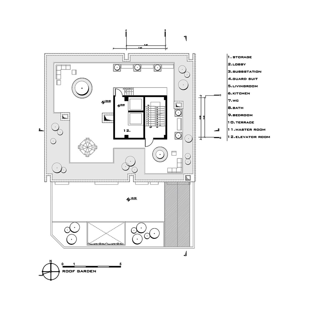
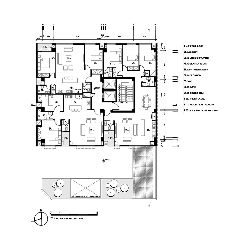
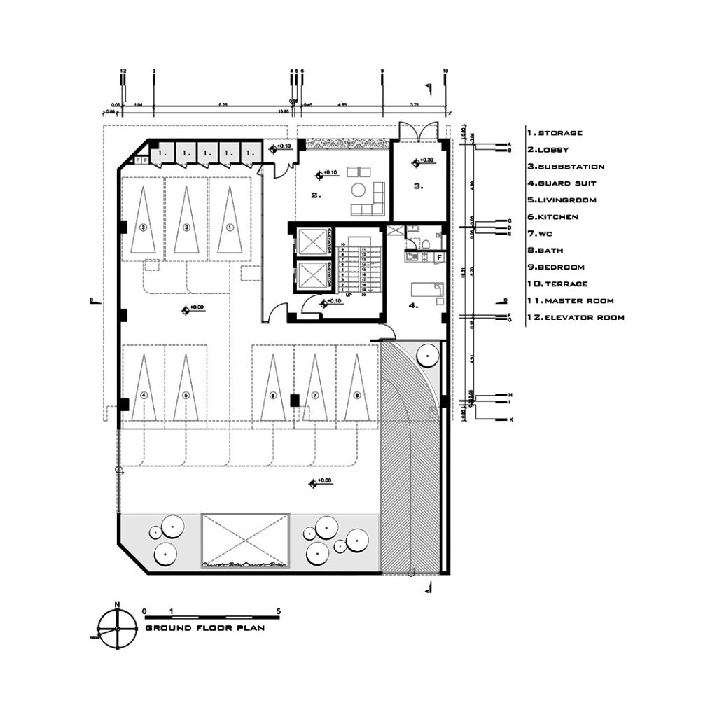
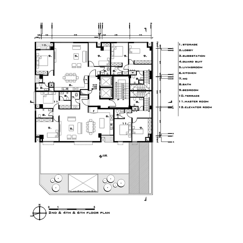
Navak

Residential
Previous
Next