Bastak is one of the historical cities in southern Iran.
The architecture of this city has been of high quality in the past, so that with the presence of the architects of this city in other southern regions, it has been able to extend its architectural style beyond Bastak in the areas of Wider than the Persian Gulf
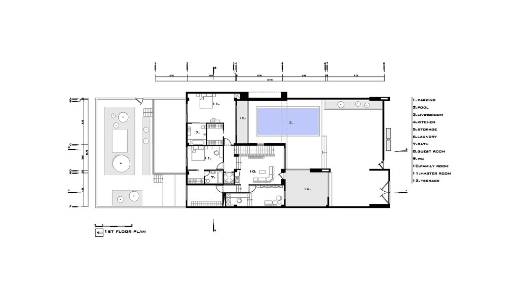
In designing this building, we tried to use the following items according to its location in a historical city
1. Create a semi-open space in front of the room and living room
- Create pre-input; In such a way that we first enter the yard and the building
- Use bright colors due to the exhausting heat of the area
- Stiffness of the outer walls of the project in dealing with passages
This house was designed for a young couple and we tried to provide them with suitable spaces for a modern lifestyle as much as possible.

































