Architecture is formed out of necessities and it concretizes abstractions.
One of the involving factors in architecture has been the economy and the market.
Now, the economy and market play the role of concretization not as one of the factors but as the only reason for it without any intermediary.
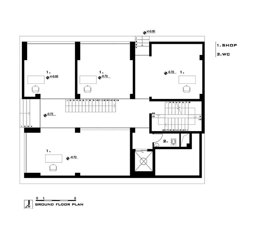
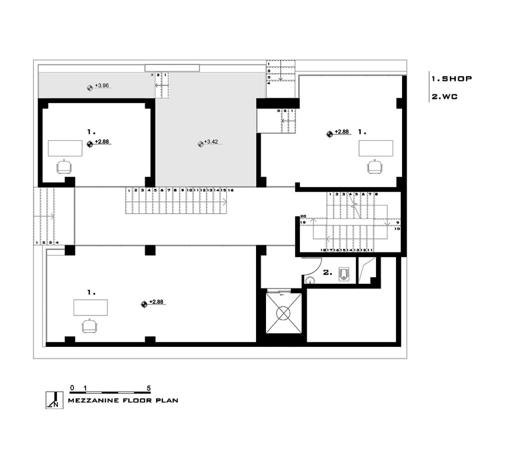
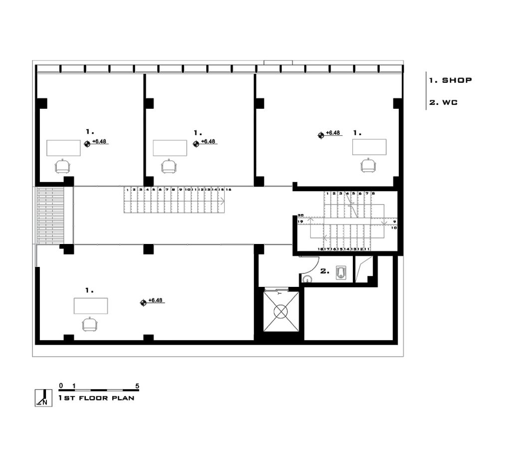
In this immediate confrontation with the desire for consumerism in the market, an attempt has been made to create spatial multiplicity by creating differences between levels and communication channels.





