Foad Amin Office

Design runs on chocolate

Our studio has worked independently since 2012

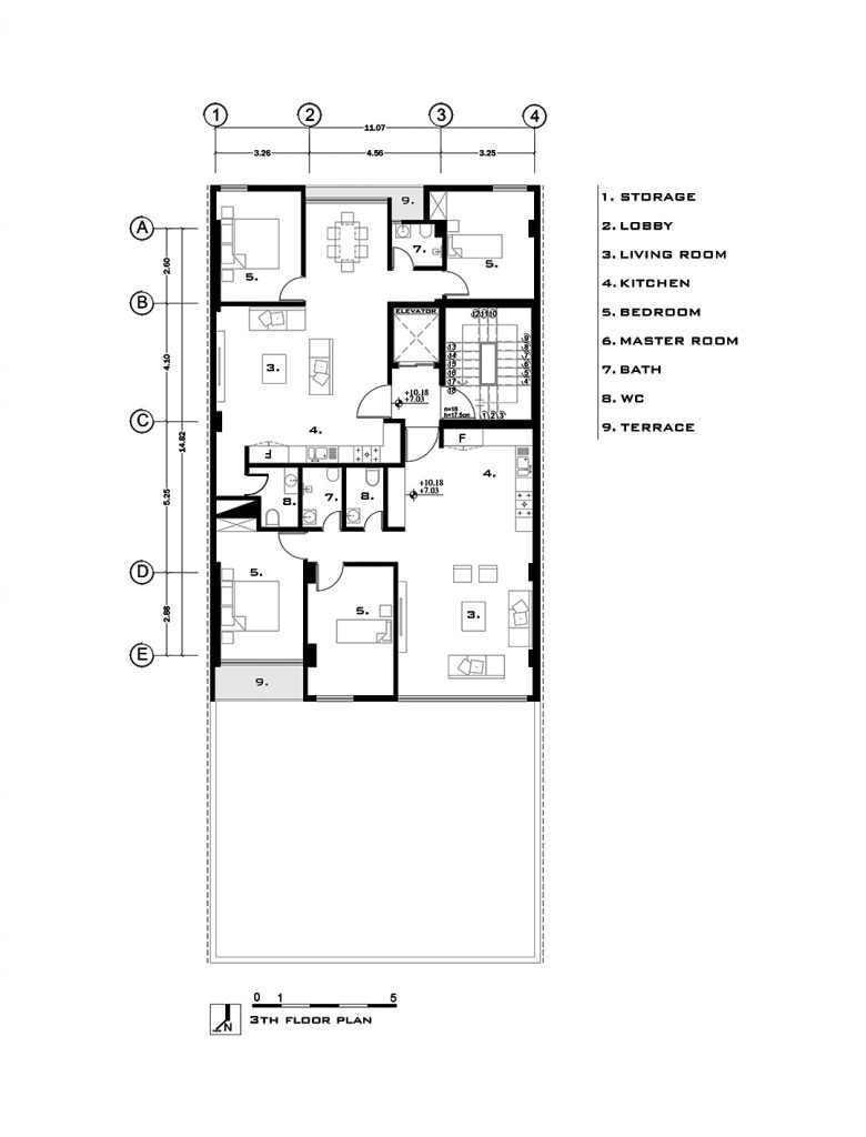
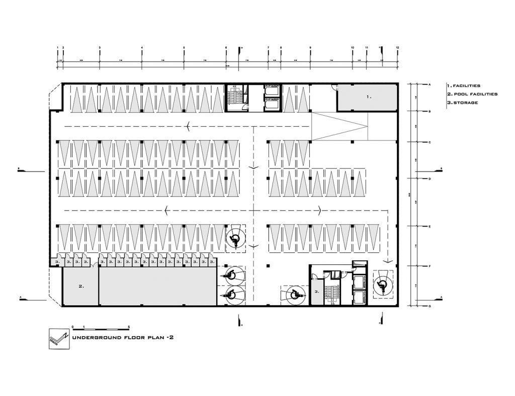
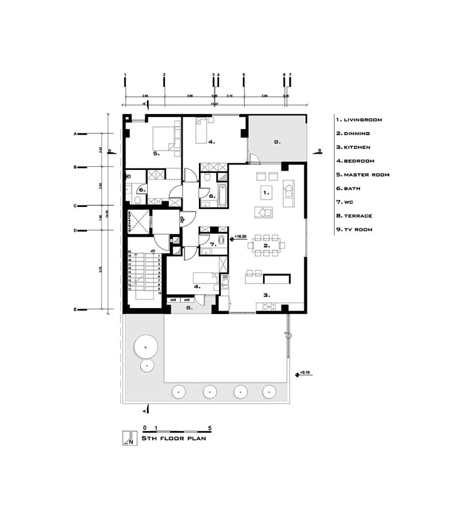
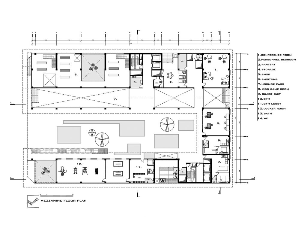
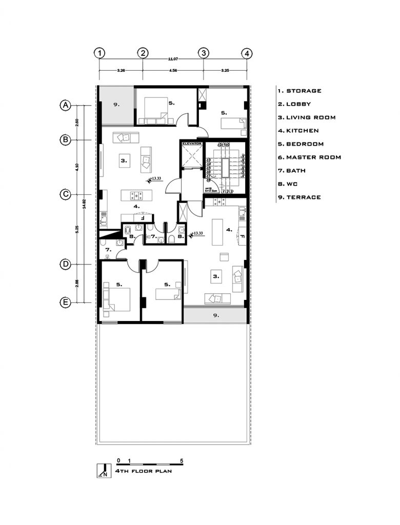
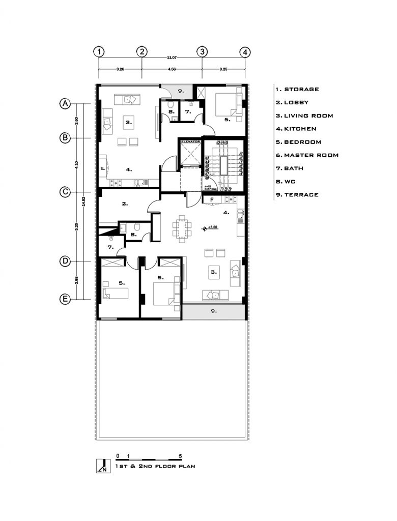
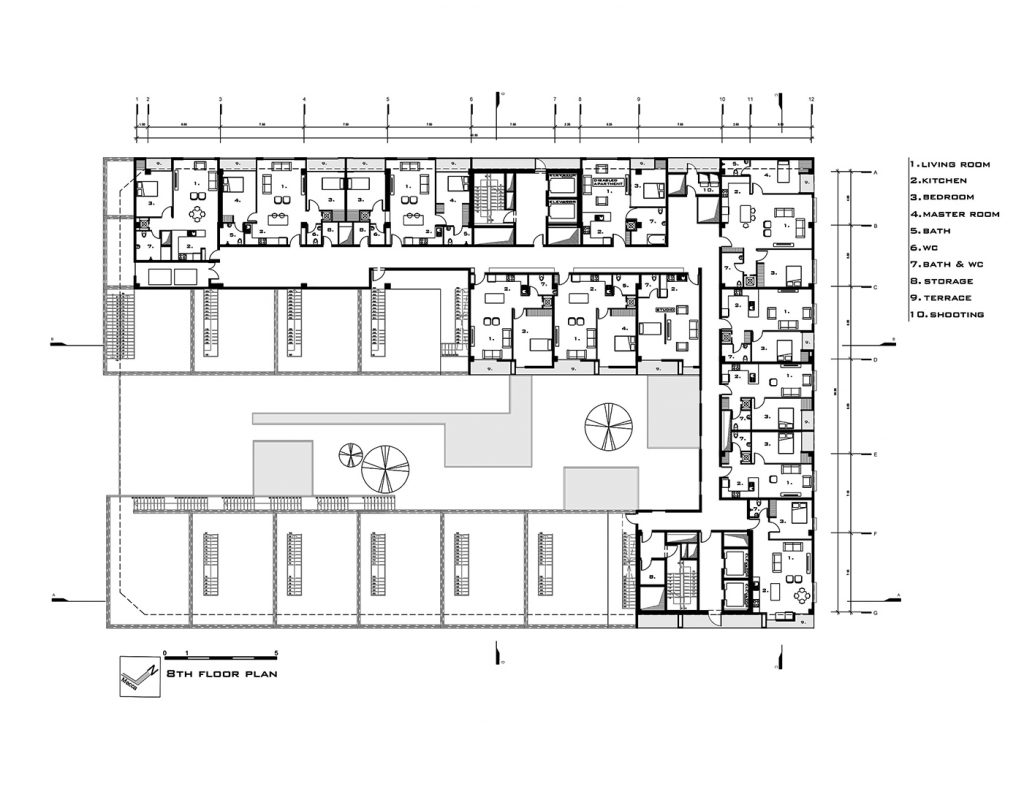
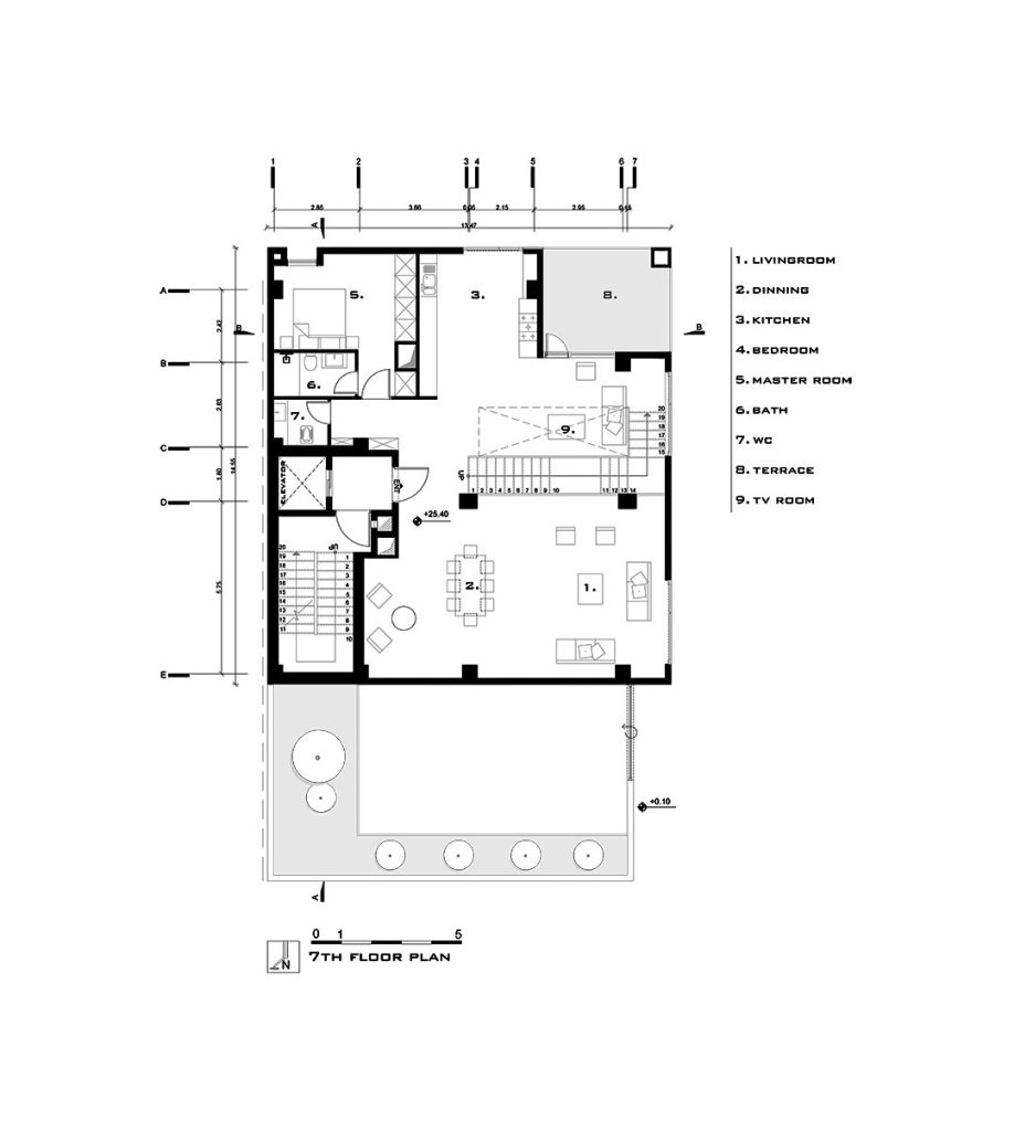
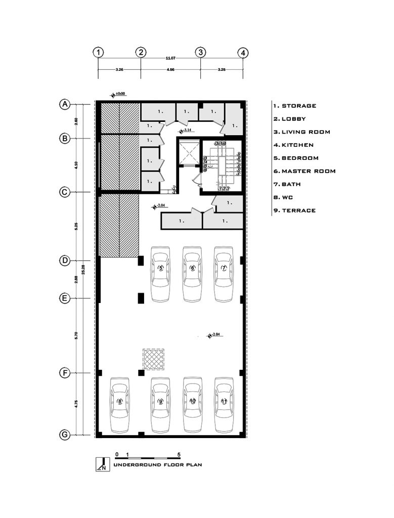
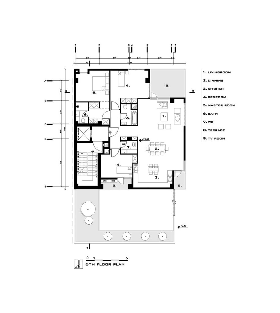
Hormoz Complex

Residential
Previous
Next