Foad Amin Office

Design runs on chocolate

Our studio has worked independently since 2012

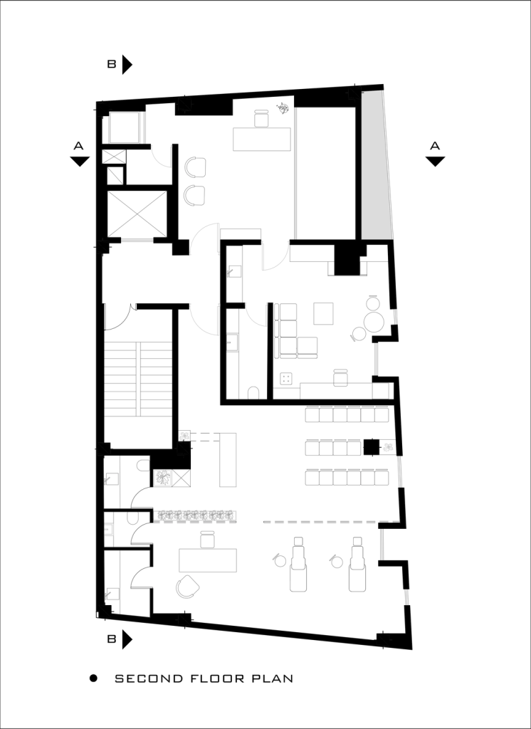
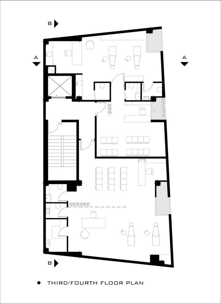
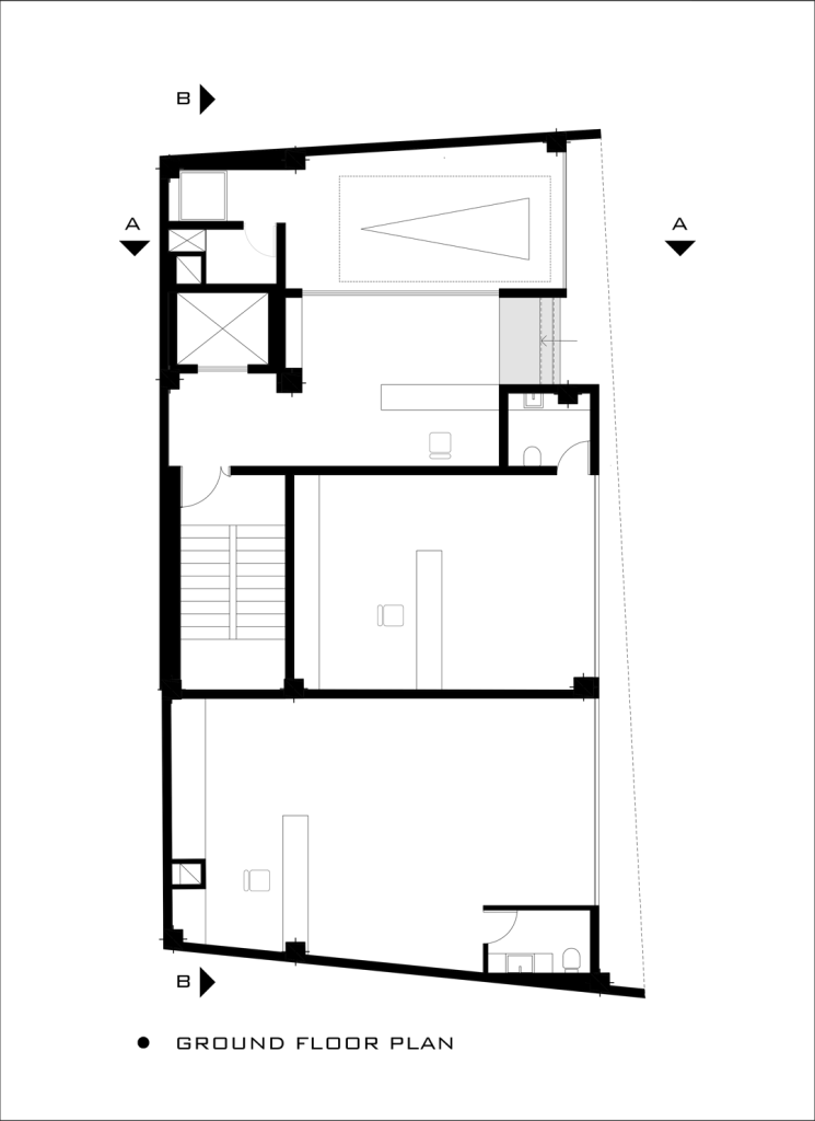
DENTIX

Clinic
Previous
Next